Osada MAGDALENKA
Spokojna okolica. Szybki i wygodny dojazd do centrum Warszawy.
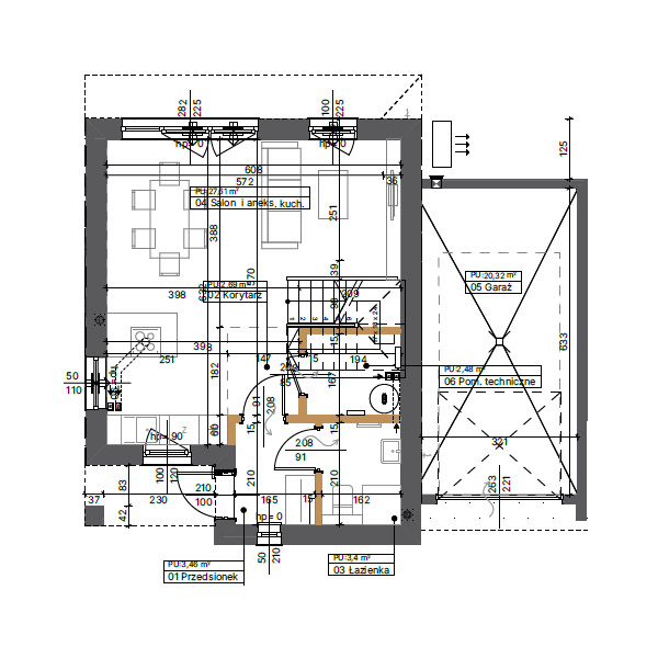
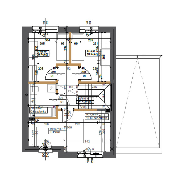
TYP 2
3 ustawne sypialnie, które pomieszczą nawet sporych rozmiarów szafy, duża łazienka dla domowników, przestronny, widny salon oraz funkcjonalny aneks kuchenny to główne zalety tego 4-pokojowego domu. Właścicielom przypadnie do gustu możliwość spędzenia czasu w zaaranżowanym przez siebie, dużym ogrodzie.
| Budynek 71 | Powierzchnia |
| Garaż | 20,32 m2 |
| Klatka schodowa | 4,39 m2 |
| Ściany rozbieralne | 3,88 m2 |
| Użytkowa lokalu | 84,70 m2 |
| Pow, całkowita | 113,29 m2 |
| Cena m2 pow. całkowitej lokalu | 8204 zł/m2 |
| Cena m2 pow. użytkowej lokalu | 9005 zł/m2 |
| Cena lokalu | 762 684 zł |
| Cena garażu | 162 316 zł |
| Razem | 925 000 zł |
*Powierzchnia pod Ściankami i Schodów obliczana jest jako powierzchnia przekroju poziomego wszystkich wewnętrznych przegród budowlanych, przejść i otworów w tych przegrodach oraz schodów wewnętrznych i podestów.
Pobierz prospekt
Prospek dostępny w formacie *.PDF


