OSADA MAGDALENKA 2
ul. Biedronki • 05-090 Słomin
24
Domy
18
Garaży
30
Miejsc postojowych
Ceny już od
739 000 zł
brutto
Osada MAGDALENKA 2
Kilka słów o nas
Jako inwestor, a zarazem generalny wykonawca, czuwamy nad sprawnym i szybkim przebiegiem wszelkich prac na naszych budowach.
Doświadczony zespół inżynierów i menadżerów kompleksowo zarządza procesem inwestycyjnym. Pieczołowicie wypracowane standardy pozwalają oferować mieszkańcom zarówno wysoką jakość naszych realizacji, jak i profesjonalną opiekę w zakresie całego procesu zakupowego.
Dajemy Klientom pełne poczucie bezpieczeństwa i zawsze służymy merytorycznym wsparciem.
Współpracujemy ze sprawdzonymi podwykonawcami, którzy znają nasze oczekiwania i zapewniają wysoki poziom dostarczanych usług.
Dzięki temu poszczególne etapy naszych projektów oddawane są do użytkowania zgodnie z harmonogramem lub przed zadeklarowanym terminem, a przyszli mieszkańcy mogą spokojnie planować prace wykończeniowe i aranżacyjne.
Inwestycja Osada Magdalenka zlokalizowana jest w pobliżu lasów Sękocińskich i Lasów Magdalenki w miejscowości Słomin z bardzo szybkim i wygodnym dojazdem do centrum Warszawy.
Wymarzone miejsce dla osób ceniących aktywność fizyczną i wygodę codziennego życia. Do Centrum Handlowego Janki dojedziecie Państwo w 8 minut, w pobliżu również pełna infrastruktura miejska, restauracje, sklepy, apteka, szkoła i przedszkole. Lokalizacja zapewnia bardzo dobrą komunikację z Warszawą a jednocześnie gwarantuje mieszkanie w cichej i atrakcyjnej okolicy.
W naszych działaniach stawiamy na spójność architektoniczną i przemyślane rozwiązania projektowe, które zapewniają użytkownikom komfort codziennego życia.
Czym wyróżnia się nasza inwestycja Osada Magdalenka 2 na tle innych:
Nowoczesna architektura
Duże ogródki z bezpośrednim dostępem
Pomieszczenia gospodarcze
Energooszczędność budynków z ekologicznym źródłem ciepła
Możliwość wykorzystania dużego poddasza nieużytkowego
Wyprowadzona instalacja do fotowoltaiki
Możliwość instalacji internetu szerokopasmowego
NASZĄ MISJĄ JEST ABY NASZYM KLIENTOM ŻYŁO SIĘ LEPIEJ.
Naszą Misją jest urzeczywistniać marzenia i potrzeby naszych Klientów o bezpiecznym i komfortowym życiu w zgodzie z naturą.
Troska i dbałość o każdego Klienta oraz nieustanne poszukiwania najefektywniejszych i nowoczesnych rozwiązań w zakresie architektury, bezpieczeństwa, komfortu oraz oszczędności energii – to nasze cele.
Inwestycja Osada Magdalenka 2 zlokalizowana jest w pobliżu lasów Sękocińskich i Lasów Magdalenki w miejscowości Słomin z bardzo szybkim i wygodnym dojazdem do centrum Warszawy. Wymarzone miejsce dla osób ceniących aktywność fizyczną i wygodę codziennego życia. Do Centrum Handlowego Janki dojedziecie Państwo w 8 minut, w pobliżu również pełna infrastruktura miejska, restauracje, sklepy, apteka, szkoła i przedszkole. Lokalizacja zapewnia bardzo dobrą komunikację z Warszawą a jednocześnie gwarantuje mieszkanie w cichej i atrakcyjnej okolicy.
Dążymy do tego, aby naszym Klientom żyło się:
Bezpiecznie
W zgodzie z naturą
Ekonomicznie
Projekty powstają przy ścisłej współpracy z renomowanymi i utytułowanymi architektami, co pozwala nam zrealizować potrzeby naszych Klientów na każdym etapie inwestycji.
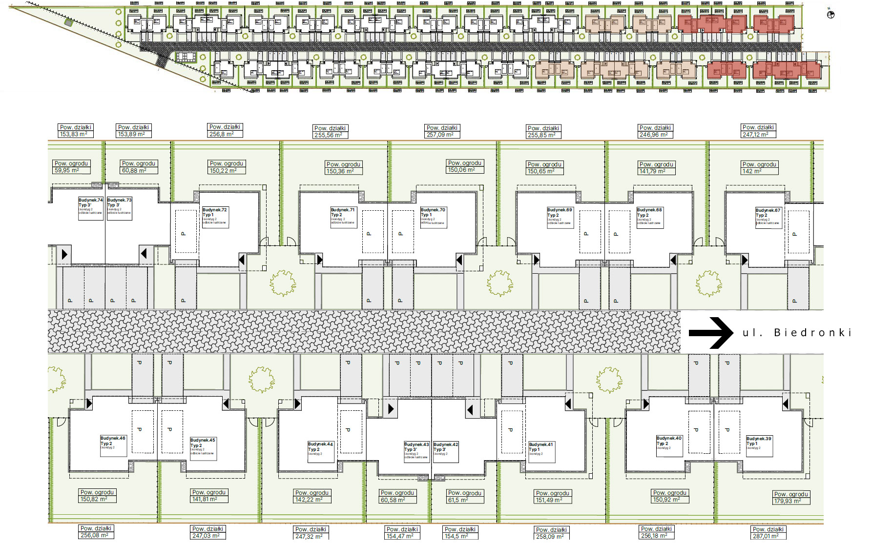
Osada Magdalenka 2
Plan osiedla ul. Biedronki
Wybierz interesujący Cię segment
Budynek 33
Sprzedany.
Budynek 34
Sprzedany.
Budynek 35
Sprzedany.
Budynek 37
Sprzedany.
Budynek 38
Sprzedany.
Budynek 62
Sprzedany.
Budynek 65
Sprzedany.
Budynek 66
Sprzedany.
Budynek 39
Sprzedany.
Budynek 41
Sprzedany.
Budynek 42
Sprzedany.
Osada Magdalenka 2
Twój nowy dom z ogródkiem
Inwestycja „Osada Magdalenka 2” to nietuzinkowe osiedle domów położone w Słominie – podwarszawskiej miejscowości. To wyjątkowy projekt, który łączy w sobie nowoczesny styl z przytulnym klimatem kameralnego osiedla i zielonej części miasta.
Bliskość malowniczych leśnych terenów i komfortowy dojazd do centrum Warszawy.
Tutaj czeka na Ciebie cisza, spokój i zieleń prywatnych ogrodów. W okolicy znajdziesz też najważniejsze punkty na mapie każdej rodziny: przedszkola, szkoły, obiekty sportowe czy sklepy.
Piękne, funkcjonalne i całoroczne domy jednorodzinne do kupienia w Słominie. Poznaj naszą ofertę i umów się na spotkanie. Nowoczesny domy jednorodzinne bez żadnych prowizji od sprawdzonego dewelopera.
Naszym Klientom oferujemy:
Piękne, funkcjonalne i całoroczne domy jednorodzinne do kupienia w Słominie. Nasze domy wyposażone są w ekologiczne źródło zasilania.
Poznaj naszą ofertę i umów się na spotkanie. Nowoczesny domy jednorodzinne bez żadnych prowizji od sprawdzonego dewelopera.
Bezpieczeństwo zakupu
Rozsądne ceny
Ciekawa i nowoczesna architektura
Terminowość
Przejrzystość warunków zakupu
FINANSOWANIE
Osada Magdalenka 2
Twój nowy dom z ogródkiem
Marzysz o przepięknym domu, z własną posesją oraz garażem w kameralnej okolicy Warszawy? Inwestycja OSADA Magdalenka 2 już dziś daje Ci taką możliwość.
Zapraszamy do naszego biura gdzie z profesjonalnymi ekspertami finansowymi omówią Państwo najbardziej korzystne warunki finansowania.
Porównamy dla Państwa dostępne oferty kredytowe banków.
Zapewniamy opiekę i kontakt z naszym ekspertem podczas całego okresu spłaty kredytu.
Adam Pieńkos
Telefon
+48 537 519 104
FINANSOWANIE INWESTYCJI
Oszczędność czasu i pieniędzy
- Możliwość spotkania z ekspertami kredytowymi w biurach sprzedaży OSADA MAGDALENKA
- Kredyty hipoteczne dla Klientów OSADA MAGDALENKA na preferencyjnych warunkach
- Bezpłatna analiza sytuacji finansowej Klienta
- Uproszczona i skrócona procedura bankowa dla Klientów OSADA MAGDALENKA
Profesjonalne doradztwo
- Kompetencje ekspertów kredytowych i doskonała znajomość sektora finansowego
- Wieloletnie doświadczenie zawodowe ekspertów kredytowych w sektorze finansowym
- Determinacja i konsekwencja ekspertów kredytowych podczas poszukiwania najkorzystniejszej oferty kredytowej i najkorzystniejszego sposobu finansowania zakupu mieszkania
Fachowa pomoc
- Podczas kompletowania dokumentów kredytowych
- Podczas negocjowania z bankami najkorzystniejszych warunków dla umów kredytowych
- Opieka i kontakt z ekspertami podczas całego okresu spłaty kredytu
Monitoring procesu kredytowego
- Bieżąca, codzienna opieka nad wnioskami kredytowymi
- Stała kontrola nad sprawnym realizowaniem procedury kredytowej
Skuteczność działania
- Konsekwentna realizacja przyjętej z Klientem strategii działania ukierunkowanej na uzyskanie najkorzystniejszych warunków kredytowych
- Efektem współpracy wielu zadowolonych i usatysfakcjonowanych Klientów
INWESTYCJE
Nasze inwestycje to wyjątkowe projekty, które łączą w sobie nowoczesny styl z przytulnym klimatem kameralnego osiedla.
Osada Dzbenin
Osada Dzbenin – 34 domy w Dzbeninie k/Ostrołęki
Osada Podróżników
Osada Podróżników – 21 domów w zabudowie bliźniaczej i szeregowej w Ostrołęce.
Apartamenty na Podróżników
Apartamenty na podróżników – 30 lokali mieszkalnych w Ostrołęce.
Osada MAGDALENKA 2
Kontakt
Marzysz o przepięknym domu, z własną posesją oraz garażem w kameralnej okolicy Warszawy? Inwestycja OSADA Magdalenka już dziś daje Ci taką możliwość.
Zapraszamy do naszego biura gdzie z profesjonalnymi ekspertami finansowymi omówią Państwo najbardziej korzystne warunki finansowania.
ANDER Andrzej Nakielski sp. komandytowa
ul. Biedronki
05-090 Słomin
NIP: 758 238 61 06
REGON: 523054761
Telefon
+48 532 530 530
sprzedaz@anderdevelopment.pl


