Osada MAGDALENKA
Spokojna okolica. Szybki i wygodny dojazd do centrum Warszawy.
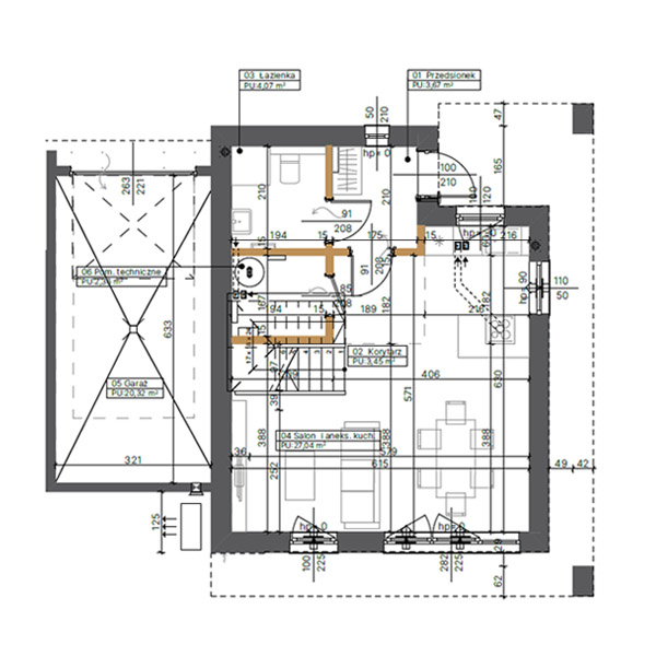
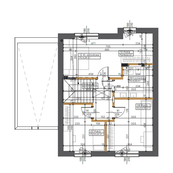
TYP 1
3 ustawne sypialnie, które pomieszczą nawet sporych rozmiarów szafy, duża łazienka dla domowników, przestronny, widny salon oraz funkcjonalny aneks kuchenny to główne zalety tego 4-pokojowego domu. Właścicielom przypadnie do gustu możliwość spędzenia czasu w zaaranżowanym przez siebie, dużym ogrodzie.
| Budynek 33 | Powierzchnia |
| Garaż | 20,32 m2 |
| Klatka schodowa | 4,36 m2 |
| Ściany rozbieralne * | 4,39 m2 |
| Użytkowa lokalu | 95,99 m2 |
| Powierzchnia całkowita | 125,06 m2 |
| Cena m2 pow. całkowitej | 7 988 zł/m2 |
| Cena m2 pow. użytkowej | 10 407 zł/m2 |
| Cena lokalu | 999 000 zł |
*Powierzchnia pod Ściankami i Schodów obliczana jest jako powierzchnia przekroju poziomego wszystkich wewnętrznych przegród budowlanych, przejść i otworów w tych przegrodach oraz schodów wewnętrznych i podestów.
Pobierz prospekt
Prospek dostępny w formacie *.PDF


